
ইস্পাত স্ট্রাকচার গাটারগুলি একটি বিল্ডিংয়ের ছাদ নিষ্কাশন ব্যবস্থার একটি গুরুত্বপূর্ণ উপাদান। তাদের প্রাথমিক কাজটি হল ছাদ থেকে বৃষ্টির জল সংগ্রহ করা, উল্লম্ব পাইপের মধ্যে এটিকে নির্দেশ করা এবং তারপর এটিকে বহিরঙ্গন নিষ্কাশন ব্যবস্থায় নিঃসরণ করা, এটি সরাসরি দেয়াল ক্ষয় হওয়া বা ভিজানো ভিজানো থেকে রোধ করা। Liweiyuan এর পণ্যের নকশা এবং ইনস্টলেশন উচ্চ শক্তি এবং হালকা ওজন দ্বারা চিহ্নিত করা হয়, মসৃণ নিষ্কাশন এবং ব্যতিক্রমী স্থায়িত্ব নিশ্চিত করে।
ইস্পাত স্ট্রাকচার গাটারগুলি একটি বিল্ডিংয়ের ছাদ নিষ্কাশন ব্যবস্থার একটি গুরুত্বপূর্ণ উপাদান। তাদের প্রাথমিক কাজটি হল ছাদ থেকে বৃষ্টির জল সংগ্রহ করা, উল্লম্ব পাইপের মধ্যে এটিকে নির্দেশ করা এবং তারপর এটিকে বহিরঙ্গন নিষ্কাশন ব্যবস্থায় নিঃসরণ করা, এটি সরাসরি দেয়াল ক্ষয় হওয়া বা ভিজানো ভিজানো থেকে রোধ করা। Liweiyuan এর পণ্যের নকশা এবং ইনস্টলেশন উচ্চ শক্তি এবং হালকা ওজন দ্বারা চিহ্নিত করা হয়, মসৃণ নিষ্কাশন এবং ব্যতিক্রমী স্থায়িত্ব নিশ্চিত করে।
Liweiyuan এর স্টিল স্ট্রাকচার গাটার জারা-প্রতিরোধী এবং প্রভাব-প্রতিরোধী উপকরণ দিয়ে তৈরি।
আমাদের পণ্য হট-ডিপ galvanized, চমৎকার জারা প্রতিরোধের, কম খরচে, এবং একটি দীর্ঘ সেবা জীবন প্রস্তাব. 1.5-2.5 মিমি পুরুত্বে উপলব্ধ, এটি বেশিরভাগ অ্যাপ্লিকেশনের জন্য উপযুক্ত।
স্টেইনলেস স্টিলের তৈরি, এই পণ্যটি জারা প্রতিরোধের প্রস্তাব করে এবং উপকূলীয় বা আর্দ্র পরিবেশের জন্য বিশেষভাবে উপযুক্ত। 1.0-2.0 মিমি পুরুত্বে উপলব্ধ, এটি একটি উচ্চ মূল্য কিন্তু একটি দীর্ঘ সেবা জীবন অফার করে।
আমাদের রঙ-লেপা ইস্পাত পণ্যগুলি গ্যালভানাইজড স্টিলের উপর ভিত্তি করে তৈরি করা হয়, যা পলিয়েস্টার বা ফ্লুরোকার্বনের মতো আবহাওয়া-প্রতিরোধী আবরণ দিয়ে লেপা, জারা প্রতিরোধ এবং আলংকারিক প্রভাব উভয়ের জন্য। 1.2-2.0 মিমি পুরুত্বে উপলব্ধ, এগুলি উচ্চ স্তরের নান্দনিক আবেদনের প্রয়োজন বিল্ডিংয়ের জন্য উপযুক্ত।
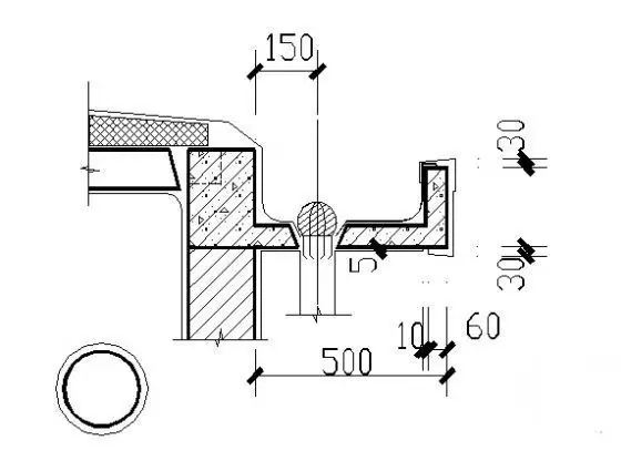
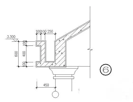
স্টিল স্ট্রাকচার গাটারের স্ট্রাকচারাল ফর্মটি ছাদের ঢাল এবং ইভস ডিজাইনের সাথে খাপ খাইয়ে নেওয়া দরকার। সাধারণ প্রকারগুলি U-আকৃতির এবং V-আকৃতির অন্তর্ভুক্ত। ইনস্টলেশন প্রক্রিয়া নিম্নরূপ:
আমাদের স্টিল স্ট্রাকচার গাটারগুলি ইস্পাত কাঠামোর ইভস বিম বা purlins এ সুরক্ষিত করতে কোণ ইস্পাত গটার বন্ধনী ব্যবহার করে। বন্ধনী ব্যবধান হল 600-1000 মিমি যাতে নর্দমা জুড়ে স্ট্রেস বিতরণ নিশ্চিত করা যায়।
সমাপ্ত নর্দমাগুলি পূর্ব-আকারের এবং সংযোগকারী বা ঢালাই ব্যবহার করে সাইটে সংযুক্ত। নর্দমা এবং ছাদের সজ্জার মধ্যে সংযোগস্থলে সিল্যান্ট প্রয়োজন।
আমরা ছাদ decking উপরে একটি ঝলকানি ইনস্টল করতে পারেন. নর্দমার নীচের প্রান্তটি ছাদের সজ্জার নীচে স্থাপন করা উচিত এবং সিলান্ট দিয়ে সিল করা উচিত। ড্রেনের গর্তগুলি নর্দমার নীচে দেওয়া উচিত, প্রাথমিকভাবে বৃষ্টির জলের রাইজারগুলির সাথে সংযোগের জন্য৷
আমাদের ইস্পাত স্ট্রাকচার গাটার উত্পাদন প্রক্রিয়ার মধ্যে রয়েছে অঙ্কন মাত্রা অনুযায়ী কাটা, নমন, পেইন্টিং, সমাপ্ত পণ্য পরিদর্শন, প্যাকেজিং এবং শিপিং। Liweiyuan এর ইস্পাত কাঠামোর গটারগুলি জারা প্রতিরোধ, মসৃণ নিষ্কাশন এবং স্থায়িত্ব নিশ্চিত করার জন্য ডিজাইন এবং ইনস্টল করা হয়েছে, দক্ষ নিষ্কাশন নিশ্চিত করে।